COBOSYSTEMS

ALUPROF MB-FERROLINE

MB-FERROLINE– Aluminium raamsysteem met smalle profielen, als alternatief voor stalen ramen 

Korte beschrijving

Het idee achter MB-FERROLINE-ramen is voor een groot deel gebaseerd op de technische oplossingen en accessoires van het systeem MB-86. Mede hierdoor zijn ramen van het systeem MB-FERROLINE uitermate geschikt ter vervanging van oudere typen ramen van staalprofielen, waardoor het uiterlijk vanaf de buitenkant vergelijkbaar blijft, terwijl tegelijkertijd de thermische isolatie aanzienlijk toeneemt.

Er zijn meerdere profieltypen beschikbaar die van elkaar verschillen qua uiterlijk.

Met het systeem MB-FERROLINE is het mogelijk constructies te maken die ideaal aansluiten op het karakter van het gebouw.

Materialen:

  • Basismateriaal profielen: 100 % recycleerbaar aluminium
  • Thermische isolator: Polyamide, versterkt met 25% glasvezel.
  • Materiaal afdichtingsprofielen: soepel EPDM (volgens TV 221)
  • Kleur afdichtingsprofielen: grijs of zwart
  • Oppervlaktebehandeling: gepoederlakt of geanodiseerd.

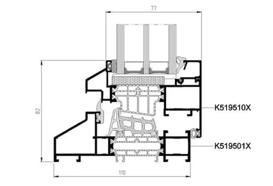
Afmetingen ramen:

  • Bouwdiepte: van 77 mm tot 110 mm.
  • Vleugeldiepte: van 86 mm tot 93,5 mm.
  • Beglazingsdikte: van 13,5 tot 61,5 mm (vast kader).
  • Maximale afmetingen vleugel: H tot … mm, L tot … mm.
  • Maximaal gewicht vleugel: … kg.

Mechanische weerstand en stabiliteit:

  • Weerstand tegen windbelasting (STS 52:2005): tot klasse C5 (NBN EN 12210:2001 + /AC:2002)

Hygiëne, gezondheid, milieu:

  • Waterdichtheid ramen (STS 52:2005): tot klasse E (1350 Pa) (NBN EN 12208:2001).
  • Luchtdoorlatendheid ramen (STS 52:2005): klasse 4 (NBN EN 12208:2001)

Energiebesparing en warmtebehoud:

  • Warmtedoorgangscoëfficiënt ramen:

Uf = vanaf 1,50 W/(m².K)

ALUPROF BELGIUM nv

Adres:
Zeelsebaan 61
9200 Dendermonde
Telefoon:
+32 (0)52 25 81 10
Website:

Bestekteksten van ALUPROF MB-FERROLINE

BE ALUPROF MB-FERROLINE

71.31.10.¦435.26.¦.¦02 Ramen / vensterdeuren, systemen, aluminium / thermisch onderbroken
Raamsysteem met smalle alu profielen, alternatief voor stalen ramen, bouwdiepte 77 mm tot 110 mm

Andere producten

REFLEKSOL ZiiiP
ALUPROF MB-78 Ei30 en Ei60
ALUPROF MB-MT 50N
ALUPROF MB-59HS
ALUPROF MB-77HS
ALUPROF MB-Skyline Type R
ALUPROF MB-79N
ALUPROF MB-86N

ONTVANG NIEUWS OVER BOUWMATERIALEN & PRODUCTEN - DIRECT IN DE INBOX

Loading
Je bent succesvol ingeschreven voor onze nieuwsbrief. Dank je wel!